Am Abend des 24. Jänner 2026 findet der 71. Grazer Akademikerball im Grazer Congress statt. Auch eine Versammlung von Gegner:innen dieser Veranstaltung wurde im Vorfeld bereits angekündigt. Diese soll als Marschkundgebung vom Mariahilferplatz über den Joanneumring bis hin zum Hauptplatz stattfinden.
In diesem Zusammenhang ist bereits ab den frühen Nachmittagsstunden (etwa 15 Uhr) mit Sperren und Verkehrsbeeinträchtigungen in der Grazer Innenstadt zu rechnen.
Das Stadtpolizeikommando Graz ist mit Unterstützung diverser Polizeieinheiten auf einen Großeinsatz vorbereitet. Dabei soll die Veranstaltung selbst, aber auch die Versammlungsfreiheit der Demoteilnehmer gleichermaßen geschützt werden.
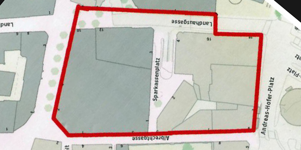
Die Landespolizeidirektion Steiermark hat für kommenden Samstag ein Platzverbot gemäß § 36 SPG rund um den Grazer Congress verordnet (siehe Verordnung).
Dieses tritt um 15 Uhr in Kraft. Aus diesem gekennzeichneten Bereich kann die Polizei Personen wegweisen und ihnen das Betreten dieses Bereichs auch zwangsweise untersagen. Wer einem Platzverbot zuwiderhandelt, dem drohen Verwaltungsstrafen bis zu einer Höhe von 1.000 Euro. Ersatzweise sind auch Freiheitsstrafen von bis zu vier Wochen vorgesehen.
Quelle: Landespolizeidirektion Steiermark

